normadent, normadent services, fauteuil, ADEC, un DEC, Quetin, Belmont, Castellini, Actéon Dürr Dental, Satelec,, Sopro, ZENIUM, 617, 717, sopix, installateur de cabinet dentaire, créateur de cabinet dentaire, radio, panoramique, fourniture , Proclinic, capteur, imagerie numérique, Caen,
Installateur armoires de matériel dentaire à Caen, nous informatisons Dentaires Dans les départements: Calvados, Manche, Orne, Seine Maritime, Eure, Normandie, nous créons Cabinet des dentairs, nous suivons les chantiers, avec des marques reconnues comme a-Quétin décembre, , Belmont, Castellini, intercontidental, Satelec. instalons nous des owandy panoramique, Morita. Nous posons des Meubles des compresseurs et des aspirations des Dürr Dental, ou radio myray Satelec. nous nous occupons de notre service après vente.
Essayez l'outil de
création site internet
EditArea.
ACCUEIL
|
Réalisations
|
Nos réalisations projet 1
ACCUEIL
Présentation
Matériels
Imagerie & Radiologie
Fournitures & Consommables
Destockage
Maitrise d'oeuvre
Réalisations
Covid 19
Traitement de l'air
-SterilAir PRO traitement
de lair
- I-care + NSK Traitement
des instrument
NORMADENT Services
Concepteur de cabinet dentaire depuis 1992.
Nos réalisations projet 1
Login
Panier
Photos
Accueil
Salle d'attente
Salle de soin 1
Salle de soin 2
Stérilisation
Salle panoramique
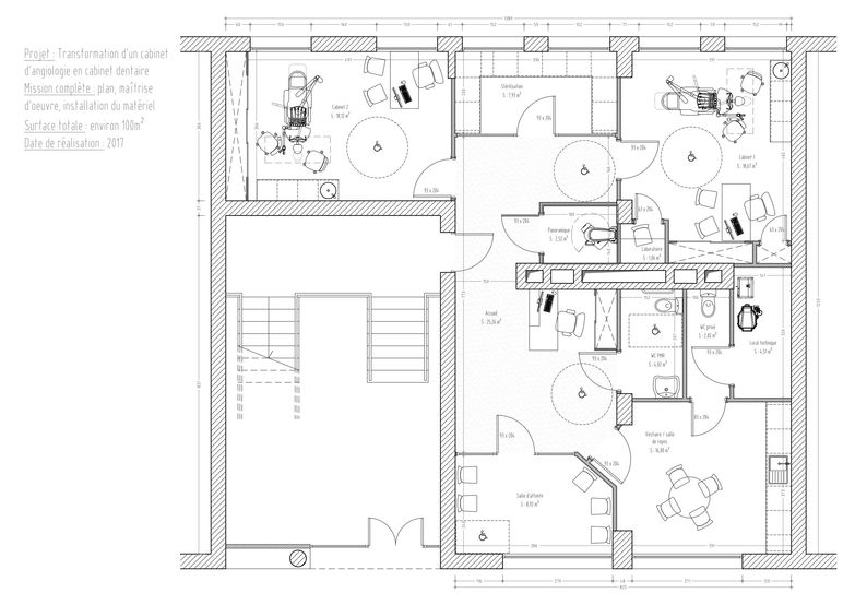
Plan du projet
Rédaction
made in Edit
Area
-
cookies